Methodist Isle of Man Logo

Building work is ready to start!

Back homeNEWSHIV/AIDS Centre, Sierra Leone
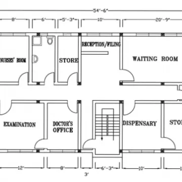
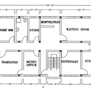
HIV-AIDSplans1plans2

UPDATE: Target reached!

Paul Craine writes:

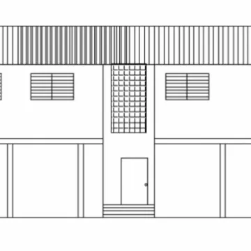
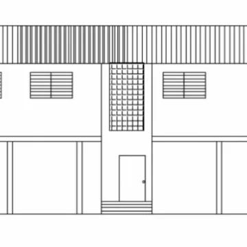
Building is ready to start
I am delighted to confirm that the first payment of almost £13,000 has now been sent so that the building of the People Living with HIV/Aids Clinic in Wellington, Freetown can finally begin. This is the scheme that the Methodist Church in the Isle of Man has been working towards over the last three years since the Methodist Church of Sierra Leone (MCSL) asked us for help in May 2013. The new clinic will transform and prolong lives. On behalf of our twinning committee (Lannoonaghey), and more importantly our twin church in Sierra Leone, I would like to say a huge thank you to everyone who has contributed in any way to the fund-raising so far.

We have stepped out in faith on this, because we have not quite raised all of the money needed yet. We have received a grant of £21,412 from the IOM International Aid Committee and, to date, we have raised the magnificent sum of £19,074.41, (£620 having come in from Cooil in the last few days). An update from the District Treasurer indicates that we still have £2,337.59. to raise. This is underwritten by the District – but we need a final push to complete the project. (Update: The Missions Christmas Event raised £1,305, and the total yet to be raised is £1,032.)

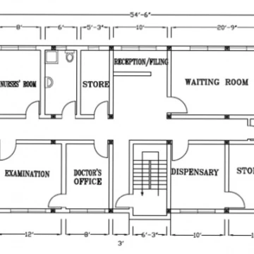
The building will progress in four phases. The first payment (30% of the total) is an advance payment to cover earthworks, concreting, blockwork in the substructure, concreting and blockwork in the ground floor. Future payments in four instalments will be dependent on certificates and evidence relating to the completion of the previous phase. It is likely to take several months to complete construction.

Background to the Project
Sierra Leone is one of the poorest countries on the planet. It ranks 183rd out of 187 in the latest UN Human Development Report. Average life expectancy is just 46 years and average income is $710. 54,000 Sierra Leoneans live with HIV/AIDS. 58% of these are female and 8% are children. The high percentage of women in these figures reflects the brutal civil war (1991 – 2002) that saw rape used as a weapon to frighten villagers. 2,700 people died from AIDS in 2014 and some 19,000 children have been orphaned due to AIDS.

MCSL has been involved in work relating to HIV/AIDS since 2002 when its Freetown clinic opened. The work involves voluntary testing, counselling, community-based work on prevention and management, supplying hygiene kits for chronically ill clients, dispensing drugs to treat opportunistic infections and providing livelihood support to families living with HIV/AIDS, such as micro-credit and support for growing vegetables. MCSL provides the clinic but the cost of staff and drugs is met by the government of Sierra Leone.

Initially the clinic in Freetown was funded by Comic Relief. Most of the care offered is home-based as this is regarded as most appropriate and cost-effective. The centre has been using part of the Superintendent Minister's manse and has rented a nearby community centre for client support. The new, purpose-built clinic will enable MCSL to scale up the work to cover some 850 people living with HIV/AIDS as well as providing support for their direct families, a further 4,000 people.

Donations can be sent to:
The Methodist Church in the Isle of Man
Barrule Road
Willaston
IM2 6LB
Isle of Man

Please include a covering note indicating that the money is for the HIV/AIDS Centre.

Get In Touch

District Administrator
01624 625408
administrator@methodist.org.im

Circuit Map

© 2026 – The Methodist Church in the Isle of Man