Methodist Isle of Man Logo

Project in Sierra Leone

Back homeNEWSProject in Sierra Leone
plans1plans2

The twinning of the Methodist Church in the Isle of Man with the Methodist Church in Sierra Leone in not simply about us raising funds for them. Our Memorandum of understanding recognises the purposes of our twinning as to deepen our understanding of each other, to learn from each other, to share a deepening of faith and commitment to God, to pray for each other and to grow in respect, care and love. However, we are acutely aware that Sierra Leone is one of the poorest countries on the planet with well over half of the population earning less than £1 per day.

A Project
In January 2014, the Twinning Committee in the Isle of Man (Lannoonaghey) launched a Diminishing Coffee Event to raise funds for a project being developed by the Methodist Church in Sierra Leone (MCSL). At the time, we described it simply as a health-related project in Freetown. In reporting to successive District and Circuit Meetings we indicated that we were trying to ensure that the project was fully thought-out and costed by MCSL before announcing any further details or making any commitment.

In December 2014 we received the first plans for the project but the original idea had mushroomed and we had concerns about the appropriateness of the revised scale. Over the last 9 months we have urged MCSL to develop a stronger rationale and a more realistic scale. During this period we have continued with fund-raising in various forms and we currently have over £7,850 earmarked for the project.

We were hugely excited this week when the MCSL Development Secretary provided us with the latest plans and fresh thinking about the project and we are now confident that we should share the details of the scheme and move forward at a faster pace.

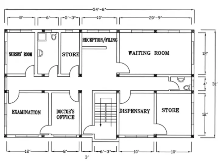
The MCSL Project we have been asked to support
The Methodist Church in the Isle of Man has been asked to support the construction of a People Living with HIV/AIDS Centre (PLHIV) in Wellington, Freetown. This will be a clinic providing care and support services for more than 1,000 people living with HIV in the Western Area. It will provide counselling and testing services, strengthen the local support network, improve clinical support including the supply of retroviral drugs and improve home-based care for the chronically ill.

This is an existing project that was originally established by MCSL with support from Comic Relief but has now outgrown its premises (a manse). MCSL is able to make land available on which they would like to build a centre with a footprint approximately 17 metres by 9 metres and we have been asked if we could provide £42,820 to cover the construction costs.

HIV rates in Sierra Leone are not high compared to other parts of Africa. Around 1.6% of the adult (15-49) population are living with HIV or AIDS. This compares with an average of 4.9% in Sub-Saharan Africa as a whole. Of the 50,000 people infected in Sierra Leone, over 4,000 are children and over 25,000 are women. This is likely to be linked to the high levels of FGM in Sierra Leone. There is concern that "the conditions for a large-scale HIV epidemic are present" (Guardian 28.04.2015)

Fund-raising plans

  • Diminishing Coffee Event – We plan to repeat the Diminishing Coffee Event beginning in February 2016. We would urge all Methodists in the Isle of Man to get involved.
  • Parish Walk – We plan to encourage a group of Methodists to take part in the Parish Walk 2016 – walking to Santon (11 miles) , Rushen (19 miles), Peel (32.5 miles) or beyond and getting sponsorship. We would urge all Methodists to sponsor a walker.
  • SL 300 – We plan to launch SL 200 – a group of 200 people who sign up to make a contribution, by standing order, of £5 or £10 per month for one year.
  • International Development Committee – we plan to apply to the International Development Committee for Small Grant funding to cover one half of the project (£21,410).

We hope that all of the Island's Methodist Churches will pray for the Methodist Church in Sierra Leone, learn more about them, share in their work and their faith and seek to support this project.

Get In Touch

District Administrator
01624 625408
administrator@methodist.org.im

Circuit Map

© 2026 – The Methodist Church in the Isle of Man